
Service Rules & Regulations
Contents
Section 100 – MEC’S Service Area
- Subsection 100-A: Description of Service Area
- Service Area Map
Section 101 – Definitions
- Subsection 101-A: Definitions
Section 102 – Establishing Electric Service
- Subsection 102-A: Applying for Service
- Subsection 102-B: Applying for Membership in MEC
- Subsection 102-C: Customer Credit and Deposits
- Subsection 102-D: Grounds for Refusal of Service
- Subsection 102-E: Service Establishment, Reestablishment, and Reconnection Charges
- Subsection 102-F: Temporary Service
- Subsection 102-G: Scheduling Service Establishments
- Subsection 102-H: Net Metering
- Subsection 102-I: Prepaid Service
Section 103 – Information and Assistance Available to MEC Customers
- Subsection 103-A: General Information
- Subsection 103-B: Information Available to Residential Customers
- Subsection 103-C: Notice of Changes in Tariffs
- Subsection 103-D: Selection of Appropriate Rate Schedules
Section 104 – Master Metering
- Subsection 104-A: Mobile Home Parks
- Subsection 104-B: Residential Apartment Complexes, Condominiums, and Other Multi-Unit Residential Buildings
Section 105 – Service Facilities and Rights-Of-Way
- Subsection 105-A: Customer Provided Facilities
- Subsection 105-B: Conversion or Relocation of Facilities
- Subsection 105-C: Rights-Of-Way
Section 106 Line Extensions to Individuals
- Subsection 106-A: General Requirements
- Subsection 106-B: Determination of Line Extension Footage and Costs
- Subsection 106-C: Line Extension Allowances
- Subsection 106-D: Advances in Aid of Construction
- Subsection 106-E: Method for Refunding Advances
- Subsection 106-F: Irrigation and Water Pumping Customers
- Subsection 106-G: Temporary Customers
- Subsection 106-H: Special Conditions
Section 107 – Construction of Line Extensions within Subdivisions
- Subsection 107-A: General Requirements
- Subsection 107-B: Advances in Aid of Construction
- Subsection 107-C: Method for Refunding Advances
- Subsection 107-D: Abandoned Underground Subdivisions
Section 108 – Cooperative and Customer Responsibilities for Safe and Reliable Service
- Subsection 108-A: Cooperative Responsibilities
- Subsection 108-B: Customer’s Responsibilities
Section 109 – Meter Reading
- Subsection 109-A: Frequency and Method of Meter Reading
- Subsection 109-B: Measurement of Service
- Subsection 109-C: Customer Requested Rereads
- Subsection 109-D: Customer Requested Meter Tests
- Subsection 109-E: Access to Customer Premises
- Subsection 109-F: Meter Tampering and Theft
Section 110 – Billing and Collection
- Subsection 110-A: Bill Information for Residential Customers
- Subsection 110-B: Estimated Bills
- Subsection 110-C: Billing Terms and Collection Procedures
- Subsection 110-D: Meter Error Corrections
- Subsection 110-E: Insufficient Fund Checks and Automated Payments
- Subsection 110-F: Levelized Billing Plan
- Subsection 110-G: Deferred Payment Plan
- Subsection 110-H: Change of Occupancy
- Subsection 110-I: Payments and Refunds
Section 111 – Termination of Service
- Subsection 111-A: Non-Permissible Reasons to Disconnect Service
- Subsection 111-B: Termination of Service without Notice
- Subsection 111-C: Termination of Service with Notice
- Subsection 111-D: Landlord / Tenant Rule
Section 112 – Administrative and Hearing Requirements
Subsection 112-C: ACC Resolution of Service and Bill Disputes
Subsection 112-A: Customer Service Complaints
Subsection 112-B: Customer Bill Disputes
Section 100 – MEC’S Service Area
Mohave Electric Cooperative, Incorporated, as a distribution cooperative that within its Certificated Service Area owns no generation or transmission facilities, provides electric services to residential, irrigation, commercial and industrial customers in Mohave County, Yavapai County, and Coconino County. The service area covers approximately 1,266 square miles and is sparsely populated except for certain communities along the Colorado River. As shown on the map on Page 4, MEC’s Certificated Service Area is split into two distinct sections. The eastern area extends from Wikieup to Peach Springs and the western section from Topock to Bullhead City. The major portion of its power requirements are provided by the Arizona Electric Power Cooperative, Inc., (AEPCO) located in Benson, Arizona and requirements not purchased from AEPCO are secured from the market.

Section 101 – Definitions
- Abbreviations: Certain references, organizations, and regulatory agencies have been abbreviated to acronyms throughout as a matter of convenience.
ACC – Arizona Corporation Commission
ARS – Arizona Revised Statutes
MEC – Mohave Electric Cooperative, Incorporated
NEC – National Electrical Code
NESC – National Electrical Safety Code
RUS – Rural Utilities Service - Advance in Aid of Construction: Funds provided to the Cooperative by the applicant under the terms of a line extension agreement the value of which may be refundable.
- Agreement: Synonymous with “Contract” as used herein.
- Applicant: Any person applying for electric service from the Cooperative at one specific location.
- Arizona Corporation Commission: The regulatory authority of the State of Arizona having jurisdiction over the Cooperative’s provision of electric service.
- Billing Month: The period between any two regular readings of the Cooperative’s meters at approximately 30 day intervals.
- Billing Period: The time interval between two consecutive meter readings that are taken for billing purposes.
- Customer: Any person receiving electric service from the Cooperative. By signing an application or contract for service, or by receiving and/or paying bills regularly issued in the person’s name, that person accepts all responsibilities of a customer, regardless of the actual user, without relieving the actual user of the responsibilities of a customer.
- Customer’s Authorized Agent: Any person designated by the customer on a Cooperative approved form as authorized to conduct business on the customer’s account including, but not limited to, making payments, obtaining billing information, making address changes, and connecting and disconnecting service. Designation of a person as an Authorized Agent does NOT make the person responsible for the payment of bills.
- Customer Charge: The amount the customers must pay the Cooperative for the availability of electric service, excluding any electricity used, as specified in the Cooperative’s tariffs.
- Customer’s Service Entrance: In general all conductors, devices, apparatus, and hardware on the customer’s side of the point of delivery, except the Cooperative’s meter installation.
- Contribution in Aid of Construction: Funds provided to the Cooperative by the applicant under the terms of a line extension agreement and/or service connection tariff, none of which is refundable.
- Cooperative: Mohave Electric Cooperative, Incorporated.
- Cooperative Equipment: The service lines, meter installations, structures, devices, apparatus, hardware, and other distribution facilities installed by or on behalf of, and/or owned by, the Cooperative up to the customer’s meter entrance.
- Day: Calendar day
- Demand: The rate at which power is delivered during any specified period of time. Demand may be expressed in kilowatts, kilovolt-amperes, or other suitable units. The period of time, unless otherwise specified in the rate schedule or contract or otherwise provided for, will be fifteen (15) minutes.
- Deposits: Credit deposits made by customers as a guaranty of the payment of the bills for electric service rendered by the Cooperative.
- Developer: One or more persons that own, improve, or remodel real estate.
- Distribution Lines: Any of the Cooperative’s lines operated at distribution voltage.
- Effective Date: The effective date of these rules and regulations shall be the date that the same are approved by the ACC.
- Electrical Service: The availability of electric energy, metered or otherwise, available to the customer within established standards of voltage and frequency to the point of delivery, subject to these rules.
- Energy: Electrical energy, the usage of which is measured in kilowatt-hours (kWh).
- Handicapped: A person with a physical or mental condition which substantially contributes to the person’s inability to manage his or her own resources, carry out activities of daily living, or protect oneself from neglect or hazardous situations without assistance from others.
- Illness: A medical ailment or sickness for which a residential customer obtains a verifiable document from a licensed medical physician stating the nature of the illness and that discontinuance of service would be especially dangerous to the consumer’s health.
- Inability to Pay: Circumstances where a residential customer:
- Is not gainfully employed and unable to pay, or
- Qualifies for government welfare assistance, but has not begun to receive assistance on the date that he receives his bill and can obtain verification of that fact from the government welfare assistance agency.
- Has an annual income below the published federal poverty level and can produce evidence of this, and
- Signs a declaration verifying that the consumer meets one of the above criteria and is either elderly, handicapped, or suffers from illness.
- Kilowatt (k W): A unit of power equal to 1,000 watts.
- Kilowatt Hour (k Wh): The amount of energy delivered in one hour, when delivery is at a constant rate of one kilowatt.
- Line Extension: The lines and equipment necessary to extend the electric distribution system of the cooperative to provide service to one or more additional customers.
- Master Meter: A meter for measuring or recording the flow of electricity that has passed through it at a single location where said electricity is distributed to tenants or occupants for their individual usage.
- Member: Any person who has qualified for membership as provided for in the by-laws of the cooperative.
- Meter: The instrument for measuring and indicating or recording the flow of electricity that has passed through it.
- Meter Installation: The meter(s) and auxiliary devices and hardware, if any, constituting the cooperative’s equipment needed to measure energy use and/or billing demand supplied to the customer’s service entrance.
- Meter Tampering: A situation where a meter has been altered to affect its normal operation. Common examples are meter bypassing, use of magnets to slow the meter recording, and broken meter seals.
- Minimum Charge: The amount the customer must pay for the availability of electric service as specified in the cooperative’s tariffs.
- Net Metering: Service to a customer that has requested and qualified under the cooperative’s net metering tariff to deliver electric energy to the cooperative’s local distribution facilities from a net metering facility to offset electric energy provided to the customer by the cooperative during the applicable billing period.
- Period of Excessive Heat: That period of time when the National Weather Service has forecast the temperature for Monday through Friday of the existing week to reach “major” or “extreme” heat levels for daily high temperature. The Cooperative shall have two forecast areas, Kingman for its eastern service area and Bullhead City for the western service area.
- Permanent Customer: A person applying for or receiving permanent service.
- Permanent Service: Service which, in the opinion of the cooperative, is of a permanent and established character and for the purposes of determining eligibility for line extension allowances or refunds only also meets the requirements of qualifying electric service. The use of electricity may be continuous, intermittent, or seasonal in nature. For the purpose of line extension allowance credits and refunds, small services such as landscape irrigation controls, security gates and controls, traffic signals, streetlights, security lights, and service to telephone and CATV pedestals are not considered permanent service.
- Person: Any individual, partnership, corporation, governmental agency, or other legally recognized entity operating as a single entity.
- Point of Delivery: Where the Cooperative terminates its’ electric service conductor at the line side of the meter, unless otherwise agreed upon in a written contract or agreement.
- Power: The rate of generating, transferring and/or using electric energy, usually expressed in kilowatts.
- Premises: All of the real property and apparatus employed in a single enterprise on an integral parcel or land undivided by public streets, alleys, or railways.
- Proper Notice: Unless specified otherwise, a written message delivered by first class mail or in person by one party to the other at the recipient’s last known address, the period of notice commencing from the date of personal delivery or mailing.
- Qualifying Electric Service: A Permanent Service that qualifies for a line extension allowance or refund by meeting the following requirements:
- The Applicant owns the property on which the service is requested or is the owner’s authorized agent.
- The property must have sewer service in the form of an approved septic tank or central sewer system hookup.
- The property must have approved service entrance equipment mounted on a building, pedestal, or meter pole installed at a location approved by the Cooperative.
- A 400 square foot minimum building slab with a permanent structure under construction, or a 400 square foot mobile home or modular home set permanently with the axles removed. Sheds, 5th wheel trailers, and travel trailers do not qualify.
- For commercial services associated with demand billing such as buildings, water pumping, irrigation, and similar applications, load calculations must be submitted which indicate that a minimum of 20 kW demand will be met for the applicable rate tariff to qualify for a line extension allowance.
- Applicants for three-phase service must provide load calculations with a minimum connected load of 800 amps.
- Water wells of 30 horsepower or less do not qualify for a line extension credit or refund.
- Regular Hours: The hours 7:00 a.m. to 6:00 p.m. Monday through Thursday shall be considered regular hours except for MEC-Recognized holidays. However, service hours may be worked at hours different from those listed as regular hours.
- Rules: These Rules and Regulations.
- Service Area: The territory in which the Cooperative has been granted a certificate of convenience and necessity and is authorized by the ACC to provide electric service.
- Service Availability Charge: A charge for the purpose of maintaining adequate revenue to cover the operating costs of an extension of line beyond the free footage.
- Service Connection/disconnection: The attachment/detachment of electric service at the point of delivery and/or installation/removal of meter(s) by Cooperative personnel, including operation of customer-owned main disconnect devices, if appropriate for safety reasons.
- Service Establishment: The establishment of electric service to the customer when the customer facilities are ready and acceptable to the Cooperative and the Cooperative needs only to install or read a meter or turn the service on.
- Service Line: The line extending from a distribution line or transformer to the consumer’s premises or point of delivery.
- Service Reconnect Charge: The charge as specified in the Cooperative’s tariffs which must be paid by the customer prior to reestablishment of electric service each time the electricity is disconnected for nonpayment or whenever service is discontinued for failure otherwise to comply with the Cooperative’s tariffs, or these rules.
- Service Reestablishment Charge: A charge as specified in the Cooperative’s tariffs for service at the same location where service disconnection was made for the same customer.
- Single Family Dwelling: A house, an apartment, a mobile home permanently affixed to a lot, or any other permanent residential unit which is used as a permanent home.
- Subdivision: For the purposes herein, when applied to Sections 106 and 107, a subdivision shall be defined as a duly recorded subdivision of land with six (6) or more contiguous lots or parcels less than 5 acres in size.
- Tariffs: The documents filed with the Commission which list the services and products offered by the Cooperative and which set forth the terms and conditions and a schedule of the rates and charges, for those services and products.
- Temporary Service: Service to premises or enterprises which the Cooperative deems temporary or speculative in character, or where it is known in advance that the service will be of limited duration, or where the Customer otherwise is unable or unwilling to meet the requirements for a Qualifying Electric Service.
- Third Party Notification: A notice sent to an individual or a public entity willing to receive notification of the pending discontinuance of service of a customer of record in order to make arrangements on behalf of said customer satisfactory to the Cooperative.
- Weather Especially Dangerous to Health: That period of time commencing with the scheduled termination date when the local weather forecast, as predicted by the National Oceanographic and Administration Service, indicates that the temperature will not exceed 32 degrees Fahrenheit for the next day’s forecast; or a period of excessive heat. The ACC may determine that other weather conditions are especially dangerous to health as the need arises.
Section 102 – Establishing Electric Service
- The application for service form may require but not be limited to the following minimum information:
- Name or names of applicants(s).
- Service address or location, telephone number, and Email address (if available).
- Billing address or location and telephone number, if different than service address.
- Address where service was provided previously.
- Date applicant will be ready for service.
- Indication of whether premises have been supplied with the Cooperative’s service previously.
- Purpose for which service is to be used.
- Indication of whether applicant is owner, lessee, or tenant of, or agent for the premises.
- Information concerning the energy and demand requirements of the customer.
- Type and kind of life-support equipment, if any, used by the customer.
- The Cooperative may require a new applicant for service to appear at its designated place of business to produce proof of identity and sign the application form.
- The application is a request for service and does not bind the applicant to take service for a period of time longer than that upon which the rates and minimum charge of the applicable tariff schedule is based; neither does it bind the Cooperative to serve except under reasonable conditions and in accordance with the applicable rates. In the absence of a signed application or contract for service, the supplying of electric service by the Cooperative and acceptance thereof by the customer shall be deemed to constitute a service agreement by and between the Utility and the customer for delivery, acceptance of
and payment for service, subject to the Cooperative’s applicable rates and rules and regulations. - Where service is requested by two or more individuals, the Cooperative shall have the right to collect the full amount owed to it from any one of the applicants.
- Customer-specific information shall not be released without specific prior written Customer authorization unless:
- The information is requested by a law enforcement or other public agency,
- The information is requested by the ACC or its staff,
- The information is reasonably required for legitimate account collection activities,
- The information is necessary to provide safe and reliable service to the Customer.
- A Consumer may become a member of the Cooperative under the conditions set forth below:
- A membership application form shall be signed, acknowledging the customer’s agreement to pay the required membership fee plus any applicable taxes and to observe such lawful rules, regulations, policies, rates, and schedules of the Cooperative as are now in force or may hereafter be in force and as are filed and approved by the ACC.
- In addition to the provisions of these Rules, each member shall be bound by the Articles of Incorporation, By-Laws, policies, and regulations of the Cooperative, as the same may be amended from time to time.
- The membership fee shall be non-transferable and non-refundable except when the customer ceases to be a member of the Cooperative as provided for in its By-Laws.
- No customer may hold more than one membership and a personal membership shall be held jointly by both husband and wife unless specified to the contrary in writing by both spouses to the Cooperative or unless the Cooperative is given satisfactory evidence that the property of a spouse which is to receive service is the sole and separate property of such spouse.
- Establishment of Credit:
- Residential
- The Cooperative shall not require a deposit from a new applicant for residential service if the applicant is able to meet any of the following requirements:
- The applicant has had service of a comparable nature with the Cooperative at another service location within the past 2 years and was not delinquent in payment more than twice during the last 12 consecutive months or disconnected for nonpayment.
- The applicant can produce a letter regarding credit verification from an electric utility where service of a comparable nature was last received which states that the applicant has had service of a comparable nature with the utility within the past 2 years and was not delinquent in payment more than twice during the last 12 consecutive months or disconnected for nonpayment.
- In lieu of a deposit, a new applicant may provide a surety bond as security in a sum equal to the required deposit.
- The applicant selects and is qualified to receive prepaid service pursuant to Subsection 102-I.
- When credit cannot be established to the satisfaction of the Cooperative, the Applicant will be required to:
- Place a cash deposit to secure payment of bills for service as prescribed herein, or
- Provide a surety bond in an amount equal to the required deposit.
- The Cooperative shall not require a deposit from a new applicant for residential service if the applicant is able to meet any of the following requirements:
- Nonresidential
- All nonresidential customers will be required to:
- Place a cash deposit to secure payment of bill for service as prescribed herein, or
- Provide a surety bond in an amount equal to the required deposit.
- All nonresidential customers will be required to:
- Residential
- Reestablishment of Credit:
- An applicant who has been a customer of the Cooperative and who is indebted to it will be required to re-establish credit by paying all delinquent bills and, unless receiving prepaid service pursuant to Subsection 102-I, by depositing the amount prescribed herein.
- A customer whose electric service has been disconnected for nonpayment of bills for service will be required, before service is restored, to reestablish credit by paying all delinquent bills and, unless receiving prepaid service pursuant to Subsection 102-I, by depositing the amount prescribed herein.
- Except for customers receiving prepaid service pursuant to Subsection 102-I, the Cooperative may require a residential customer to reestablish a deposit if the customer becomes delinquent in the payment of 2 or more bills within a 12 consecutive month period or has been disconnected from service during the last 12 months.
- Deposits:
- Except for applicants selecting and qualified to receive prepaid service pursuant to Subsection 102-I, the amount of a deposit required by the Cooperative to establish or re-establish credit shall be determined according to the following terms:
- Residential customer deposits may not exceed two times that customer’s estimated maximum monthly bill.
- Nonresidential customer deposits shall not exceed two and one-half times that customer’s estimated maximum monthly bill.
- Applicability to Unpaid Accounts
- Deposits and interest prescribed herein will be applied to unpaid bills owing to the Cooperative when there is a past due balance between June 1 to October 15, or when service is discontinued, and interest will not be charged on amounts that would otherwise accrue during the period of June 1 through October 15.
- Deposits applied against active service accounts during the period of June 1 through October 15 must be re-established by the customer in four (4) monthly installments.
- Refunds of Deposits
- Upon discontinuance of service, the Cooperative will refund any balance of the deposit, plus applicable interest, in excess of unpaid bills; any credit balance will be refunded by check to the last known customer address.
- After a residential customer has, for 12 consecutive months, paid all bills prior to their delinquent date, the Cooperative shall deem such customer to have satisfactorily established credit and shall refund the deposit with earned interest within 30 days.
- The Cooperative will pay interest on deposits equal to the One Year Constant Maturities Rate Established Annually on January 1st. This floating interest rate is applicable to customer security deposits held by the Cooperative for new customers or customers who have not paid their bills in a timely fashion. Where such deposits remain for a period of one year or more and the customer making the deposit continues to be a customer without a delinquency in payment, the interest on the deposit shall be applied to the customer’s bill.
- The Cooperative may review the customer’s usage after service has been connected and adjust the deposit amount based upon the customer’s actual usage.
- A separate deposit may be required for each meter installed.
- The Cooperative shall issue a nonnegotiable receipt to the applicant for the deposit. The inability of the customer to produce such a receipt shall in no way impair his right to receive a refund of the deposit which is reflected on the Cooperative records.
- Customer deposits shall not prevent the Cooperative from terminating the agreement for service with a customer or suspending service for any failure in the performance of customer obligations under the agreement for service or any violation of the Cooperative’s Rules and Regulations in effect from time to time as approved by the ACC.
- Except for applicants selecting and qualified to receive prepaid service pursuant to Subsection 102-I, the amount of a deposit required by the Cooperative to establish or re-establish credit shall be determined according to the following terms:
- The Cooperative may refuse to establish service if any of the following conditions exist:
- The Applicant is indebted to the Cooperative in respect to an account for electric service or service calls with the Cooperative, and the Applicant has not made arrangements
satisfactory to the Cooperative for payment. - A condition exists which in the Cooperative’s judgment is unsafe or hazardous to the applicant, the general population, or the Cooperative’s personnel or facilities.
- Refusal by the Applicant to provide the Cooperative with a deposit when the Customer has failed to meet the credit criteria for waiver of deposit requirements.
- Customer is known to be in violation of the Cooperative’s tariffs filed with theACC.
- Failure of the Customer to furnish safe, unimpaired access to the premises and meter, and such funds, service, equipment, and/or rights-of-way necessary to serve the consumer and which has been specified by the utility as a condition for providing service.
- Applicant falsifies his or her identity for the purpose of obtaining service.
- Applicant is in violation of these rules or any applicable rule or regulation of the ACC or any applicable law, or is in default as to any prior agreement between the applicant and the Cooperative.
- Applicant is known to have tampered with the electrical service to bypass the meter.
- The Applicant is indebted to the Cooperative in respect to an account for electric service or service calls with the Cooperative, and the Applicant has not made arrangements
- When an Applicant or Customer is refused service or service has been discontinued under the provisions of this rule, the Cooperative will notify the Applicant or Customer of the reasons for the refusal to serve and of the right of Applicant or Customer to appeal to the ACC.
- The Cooperative may make a charge as approved by the ACC for the establishment, reestablishment, or reconnection of services. This charge will be applicable whenever service is turned on at an address or when service is reconnected after having been discontinued for nonpayment of bills or for failure otherwise to comply with the filed tariffs or reestablished after a customer requests disconnection. No service establishment charge will be levied upon an existing customer who makes a bona fide name change. No service reestablishment or service reconnection charge will be charged for service disconnects to residential customers that occur during the period of June 1 through October 15.
- Should service be established during a period other than regular working hours at the customer’s request, the customer may be required to pay an after-hours charge for the service connection. Where the Cooperative’s scheduling will not permit service establishment on the same day requested, the customer can elect to pay the after-hours charge for establishment on that day. If the Customer does not elect to pay the after-hours charge service will be established on a scheduled basis during normal working hours.
- For the purpose of this rule, the definition of service establishments is when the customer’s facilities are ready for service, are installed in a manner acceptable to the Cooperative and the Cooperative needs only to install a meter, read a meter, or turn the service on.
- In accordance with the terms herein and in Subsection 106-H, Applicants for Temporary Service may be required to pay the Cooperative in advance of service establishment, a contribution in aid of construction, including a fee for the use of transformer(s) and associated
structures, based on the estimated cost of installing and removing the facilities, less any salvage, necessary for furnishing the desired service. - Where the duration of service is to be less than one month, the Applicant may also be required to advance a sum of money equal to the estimated bill of service.
- Where the duration of service is to exceed one month, the Applicant may also be required to meet the deposit requirements of the Cooperative.
- If at any time during the term of the agreement for Temporary Service the character of a Temporary Customer’s operations changes so that in the opinion of the Cooperative, the Customer is classified as a Permanent Customer, the terms of the Cooperative’s line extension rules shall apply.
- Customer provided temporary service entrance equipment including meter poles, pedestals, and service gear must meet the minimum safety standards required of a Permanent Service.
- After an Applicant has complied with the Cooperative’s application and deposit requirements, and has been accepted for service by the Cooperative, the Cooperative shall schedule that Customer for service establishment.
- Service establishments shall be scheduled for completion within 5 working days of the date the Customer has been accepted for service, except in those instances when the Customer requests service establishment beyond the 5 working day limitation. This rule applies only in those instances where the customer’s facilities are ready for service as provided for in Subsection 102-E (3).
- When the Cooperative has made arrangements to meet with a Customer for service establishment purposes and the Cooperative or the Customer cannot make the appointment during the prearranged time, the Cooperative shall reschedule the service establishment to the satisfaction of both parties.
- The Cooperative shall schedule service establishment appointments within a maximum of 4 hours during normal working hours, unless another time frame is mutually acceptable to the Cooperative and the Customer.
- Service establishment shall be made only by qualified Cooperative service personnel.
- For the purposes of this rule, service establishments are where the Customer’s facilities are ready and acceptable to the utility and the utility needs only to install or read a meter or turn the service on.
- The Cooperative shall attempt to schedule all service establishments in accordance with the above provisions. However, service establishments for security and street lighting may be assigned a lower scheduling priority than other service requests.
- The Cooperative shall offer net metering to the Customer.
- The net metering option shall be offered to the Customer based on the ACC approved net metering tariff.
- The Cooperative will install the proper net metering equipment upon the completion and inspection of the Customer’s generation system and the filing of all enrollment forms requested by the Cooperative based upon the approved net metering tariff.
- Where the Cooperative has the capability of doing so, it shall offer prepaid service to residential and small commercial-energy Customers receiving Permanent Service as an option to alleviate the financial impact of paying a cash deposit to the Cooperative or purchasing a surety bond for service. Prepaid Service shall be offered under the terms and conditions set forth in a separate prepaid service agreement and Arizona Corporation Commission approved tariff and prepaid service agreement. Unless otherwise provided in the prepaid service agreement or Arizona Corporation Commission approved tariffs, the following terms and conditions will apply to Prepaid Service:
- The residential or small commercial-energy Customer shall prepay an agreed amount upon subscribing to the prepaid service option.
- The residential or small commercial-energy Customer shall have the ability to access their current consumption and remaining prepaid balance by utilizing the Cooperative’s website.
- In lieu of written notice pursuant to Subsection 111-C, the Cooperative shall notify the residential or small commercial-energy Customer by electronic mail or text messaging, where provided, and by interactive voice response phone call at the number provided by the Customer reminding the Customer that additional prepaid funds are necessary as the current prepaid amount becomes nearly consumed.
- The residential or small commercial-energy Customer may make subsequent prepayments as often as desired by making payments in person at the Cooperative’s office, or by mailed check; or at any time, including after hours, by utilization of the Cooperative’s electronic payment system found on the Cooperative’s website, or by utilization of the Cooperative’s voice-activated response telephone payment system at no cost in fees to the Customer.
- Should the residential or small commercial-energy Customer neglect to make payment prior to the total of their prepaid balance and disconnection occurs, the Customer can make a payment, including the applicable Service Reconnect Charge, through any of the means described above in paragraph (d) in order to have their service reconnected. The Cooperative will endeavor to reconnect the service within two hours of the time the payment is made.
- Any residential or small commercial-energy Customer of the Cooperative may opt-in or out of the prepaid service option at any time; however, the Customer may change options no more than 2 times in a calendar year including the initial election of the prepaid service option.
- Any residential or small commercial-energy Customer who opts out of the prepaid service program continuing service with the Cooperative will be required to re-establish credit with the Cooperative as set forth in Subsection 102-E; provided, however, utilization of the prepaid service option for a period of 12 consecutive months by a residential Customer without disconnection of service shall have demonstrated the establishment, or re-establishment of satisfactory credit with the Cooperative and may elect to opt-out of the prepaid option without obligation to post a deposit for continuing service.
Section 103 – Information and Assistance Available to MEC Customers
- The Cooperative will maintain on file at each of its offices all of its tariffs and will also maintain on file at its principal place of business the following information:
- All service rules and regulations.
- All schedules of rates.
- The rights and remedies the Customer has available to them when a dispute arises with the Cooperative.
- The above information will be kept available by the Cooperative for public inspection or examination at all reasonable times. All new Customers shall be informed of their rights to review this information.
- The Cooperative shall make available upon Customer request a concise summary of the rate schedule applied for by such Customer. The summary shall include the following:
- Monthly minimum or customer charge, identifying the amount of the charge and the specific amount of usage included in the minimum charge, where applicable.
- Rate blocks, where applicable.
- Any adjustment factor(s) and method of calculation.
- In addition, the Cooperative shall make available upon customer request a copy of the ACC’s Rules and Regulations concerning:
- Deposits;
- Terminations of service;
- Billing and collection; and
- Complaint handling.
- The Cooperative, upon request of a Customer, shall transmit a written statement of actual consumption by such Customer for each billing period during the prior twelve months unless such data is not reasonably ascertainable. Actual consumption by former Customers not of current record shall not be disclosed by the Cooperative to the current Customer of record.
- The Cooperative shall inform all new Customers of their rights to obtain the information specified above.
- The Cooperative shall notify the affected Customers of any change in tariffs.
- The Cooperative shall use its best efforts to select the most favorable rate for which the Customer is eligible, based on available data at the time of application. The Cooperative shall use its best efforts for notifying the Customer of the most favorable rate schedule if the Customer class has changed after initial application, and shall not be required to refund the difference in charge under different rate schedules. Upon written application of any material changes in the Customer installation or load conditions, the Cooperative will assist in determining if a change in rate schedule is desirable, but not more than one (1) such change at the Customer’s request will be made within any 12 month period.
Section 104 – Master Metering
- The Cooperative shall refuse service to all new construction and/or expansion of existing permanent residential mobile home parks unless the construction and/or expansion is individually metered by the Cooperative. Line extensions and service connections to serve such expansion shall be governed by the Line Extension Rules of the Cooperative.
- Permanent residential mobile home parks for the purpose of this Section shall mean mobile home parks where, in the opinion of the Cooperative, the average length of stay for an occupant is a minimum of six months.
- For the purpose of this Section, expansion means the acquisition of additional real property for permanent residential spaces in excess of that existing at the effective date of this rule.
- Master metering shall not be allowed for new construction of apartment complexes and condominiums unless the building(s) will be served by a centralized heating, ventilation and/or air conditioning system and the contractor can provide to the Cooperative an analysis demonstrating that the central unit will result in a favorable cost/benefit relationship.
- At a minimum, the cost/benefit analysis should consider the following elements for a central unit as compared to individual units:
- Equipment and labor costs
- Financing costs
- Maintenance costs
- Estimated kWh usage
- Estimated kW demand on a coincident demand and non-coincident demand basis (for individual units)
- Cost of meters and installation
- Consumer account cost (one account vs. several accounts)
- When an existing master metered hotel or similar multiple occupancy building is converted to a condominium, the electrical service must be converted to individual metering. If the condominium conversion has already occurred, then the responsible party must provide a deposit to the Cooperative in the amount specified in Subsection 102-C(3(a)(2). The deposit will be held by the Cooperative until such time as the Cooperative, in its discretion, applies it in whole or in part against a delinquent bill or the service, in good standing, is disconnected.
Section 105 – Service Facilities and Rights-Of-Way
- Each Applicant for services shall be responsible for all inside wiring, the service entrance, and meter socket.
- Meters and service switches in conjunction with the meter shall be installed in an outside and accessible location where the meters will be readily and safely accessible for reading, testing, and inspection and where such activities will cause the least interference and inconvenience
to the Customer. The Customer shall provide, without cost to the Cooperative, at a suitable and easily accessible location, sufficient and proper space for installation of meters. - When a meter or electric service is no longer safely and/or readily accessible to the Cooperative, or the electric service is determined to be in violation of the NEC, NESC, or other applicable code or jurisdictional regulation as a result of conditions on the premises including, but not limited to, existing or new fencing, locked gates, the construction of room additions, awnings, garages, or other changes to the premises, the Customer shall be responsible for the expense of correcting the violation. The Customer shall be responsible for the relocation of the Customer-owned electric service equipment, if necessary, to correct the access or code violation issue. The Customer shall also be responsible for all costs incurred by the Cooperative for the relocation, disconnection, and reconnection of the electric service that may be necessary as a result of the service relocation.
- Prior to the establishment of service, the owner of any property with a multi-meter service gear installation shall be required to permanently mark each meter socket with the appropriate suite or apartment numbers using either riveted or bolted metal (or other acceptable material) stamped tags acceptable to the Cooperative.
- When requested in accordance with the provisions of Article 6.1 of ARS Title 40, Chapter 2 (ARS Sections 40-341 to 40-346), overhead lines shall be converted to underground service for individual Customers or groups of Customers and interconnected to the Cooperative’s system as provided by the provisions of Article 6.1 of ARS Title 40, Chapter 2, as amended from time to time. Where the provisions of Article 6.1 of ARS Title 40, Chapter 2 do not apply, the following shall be applicable to the conversion of overhead line to underground line:
- The Customer(s) shall provide all trenching, conduit, select backfill where required, backfilling, compaction, and all concrete work according to the specifications of the Cooperative and local codes and shall perform all street, curb, and sidewalk repairs at the Customer’s expense in accordance with local jurisdiction.
- The Customer(s) shall pay to the Cooperative as a nonrefundable contribution in aid-to-construction the cost of the existing line at present value, less credit for salvage, if any, plus retirement cost prior to the start of construction. No line extension allowance credits shall be granted for the conversion or relocation of facilities.
- The Customer(s) shall sign any additional agreements as required for the conversion of overhead facilities to underground.
- Where it is necessary to convert all or any portion of an existing overhead or underground distribution system from single-phase to three-phase in order to furnish three-phase service to a Customer, the total cost of such conversion shall be paid as a contribution in aid of construction by the Customer. No line extension allowance credits shall be granted for conversions of facilities from single-phase to three-phase.
- Where the meter or service line location on the Customer’s premises is changed at the request of the Customer, or due to alterations on the premises, or due to a change in the amperage capacity and/or voltage requirements of the Customer’s service equipment, the Customer shall provide and have installed at his expense all wiring materials and equipment necessary for relocating the meter and service line connection and the Cooperative may make a charge not to exceed actual cost for moving the meter and/or moving or upgrading the service line.
- The Cooperative shall be granted rights-of-way and easement(s) over the property of the Customer of sufficient width for the erection, maintenance, operation, repair, replacement, relocation, removal or use of any and all wire, poles, machinery, supplies, equipment, metering and regulating and other apparatus and fixtures necessary or convenient for the supplying of electric service to the Customer. The Cooperative shall be given safe and
unimpaired access at reasonable times to the premises of the Customer for the purpose of reading meters, testing, repairing, relocating, removing, or exchanging any or all equipment or facilities necessary to provide electric service to the Customer. The required easement(s) and access shall be conveyed to the Cooperative prior to service being made available to the Customer without cost to the Cooperative. It may discontinue service after proper notice is issued if there are violations of the required safe and unimpaired access. - The Cooperative shall not be obligated to bear any part of the cost of obtaining or retaining rights-of-way, easements, licenses, or permits. This requirement includes ongoing rights-of way rental, appraisal, and permitting fees which may be incurred as a result of an electric line
extension; those fees shall be the responsibility of the Customer. The Customer may be required to put up a non-interest bearing cost deposit(s) before work to obtain said rights-of-way can begin or continue. Any part of the deposit not used for obtaining rights-of-way may be applied toward and become part of the deposit required as set forth in Subsection 102-C. - When the Cooperative discovers that a Customer or his agent is performing work or has constructed facilities adjacent to or within an easement or right-of-way and such work, construction or facility poses a hazard or is in violation of federal, state, or local laws, ordinances, statutes, rules or regulations, or significantly interferes with the Cooperative’s access to equipment, the Cooperative shall notify the Customer or his agent and shall take whatever actions are necessary to eliminate the hazard, obstruction or violation at the Customer’s expense.
- The Cooperative shall construct or cause to be constructed and shall own, operate and maintain all underground electric distribution and service lines along public streets, roads, and highways and on public lands and private property which it has the legal right to occupy.
- Rights-of-way and easements suitable to the Cooperative must be furnished by the Developer at no cost to the Cooperative and in reasonable time to meet service requirements. All easements must be accessible by the normal construction equipment used by the Cooperative. The Developer shall also provide the Cooperative with a subdivision plat in suitable electronic format as recorded and approved by the County. Unapproved final plats may also be accepted at the discretion of the Cooperative; preliminary plat maps are not acceptable for electric line extension design purposes. No underground electric facilities shall be installed until the final grades have been established and furnished to the Cooperative. In addition, the easement strips, alleys and streets must be graded to within six (6) inches of final grade by the Developer before the Cooperative will commence construction. Such clearance and grading must be maintained by the Developer during construction of electric facilities.
- If, subsequent to construction, the clearance or grade is changed in such a way as to require relocation or adjustment of the overhead or underground facilities, or if deemed advisable by the Cooperative to require changing any underground to overhead, the cost of any damage,
relocation, replacement, adjustment and/or resulting repairs to the electric facilities shall be borne by the Developer.
Section 106 Line Extensions to Individuals
- Extensions of distribution facilities and lines of standard existing voltages necessary to furnish permanent electric service to applicants and Customers of the Cooperative will be made by the Cooperative in accordance with the provision of this Section. These provisions shall apply throughout the entire service area of the Cooperative unless modified by the provisions of an effective rate schedule or specific order of the ACC, in which cases the provisions of the rate schedule or order shall govern to the extent applicable.
- The Cooperative will construct, own, operate, and maintain lines along public streets, roads, and highways which the Cooperative has the legal right to occupy, and on public lands and private property across which rights-of-way and easements satisfactory to the Cooperative may be obtained without cost to or condemnation by the Cooperative.
- Extensions of distribution facilities and lines of standard existing voltages necessary to furnish permanent electric service to applicants and Customers of the Cooperative will be made by the Cooperative in accordance with the provision of this Section. These provisions shall apply throughout the entire service area of the Cooperative unless modified by the provisions of an effective rate schedule or specific order of the ACC, in which cases the provisions of the rate schedule or order shall govern to the extent applicable.
- The Cooperative will construct, own, operate, and maintain lines along public streets, roads, and highways which the Cooperative has the legal right to occupy, and on public lands and private property across which rights-of-way and easements satisfactory to the Cooperative may be obtained without cost to or condemnation by the Cooperative.
- Each line extension agreement shall at a minimum include the following information:
- Name and address of applicant
- Proposed service address and location
- Description of requested service
- Description and sketch of the requested line extension
- A cost estimate to include materials, labor, and other costs as necessary
- Payment terms
- A concise explanation of any refunding provisions if applicable
- The Cooperative’s estimated starting and completion date for construction of the line extension.
- Line extension measurement shall be along the route of construction required, but no free distance shall be permitted beyond the shortest practical route to the nearest practical point of delivery on each Customer’s premises as determined by the Cooperative. This measurement shall include primary and secondary lines, service drops, and service laterals.
- Estimated line extension costs shall be based upon the following components:
- Direct material
- Direct labor
- Overhead
Overhead costs shall include all properly capitalizable expenditures related to construction.
- The Cooperative will make, without charge, single-phase extensions, both overhead and underground, from its existing distribution facilities a distance up to 625 feet where the property served is not within a subdivision. The distance of 625 feet is to be measured from existing distribution facilities of the Cooperative.
- Underground extensions will generally be made only in those areas of the Cooperative where underground facilities are in place. The applicant for an underground extension shall provide at his expense the trenching, service wire, backfilling (including any imported backfill required), compaction, repaving, and earth-work for pull boxes or other preparation for electrical apparatus necessary for the installation of underground facilities, all in accordance with the specifications and schedules of the Cooperative. At its option, the Cooperative may elect at the applicant’s expense to perform the necessary activities to fulfill the applicant’s
responsibility hereunder provided the expense to the applicant is equal to or less than that which would otherwise be borne. - The Cooperative will make without charge three-phase overhead extensions, where available, from its existing distribution facilities a distance up to 225 feet. This free footage allowance is to be measured from existing three-phase distribution facilities.
- Three-phase underground service for the Customer’s convenience and/or use only shall be supplied only when the Customer pays the additional cost, if any, of three-phase underground over standard overhead construction, in addition to providing all easements, trenching, select backfill when required, backfilling, compaction and all concrete work to the specifications of the Cooperative and other local codes at no cost to the Cooperative.
- Three-phase underground service for the Applicant’s convenience and/or use only shall be supplied only when the Applicant pays the difference in cost (including transformers), if any, of three-phase underground over standard overhead construction, in addition to providing all easements, trenching, conduit, select backfill when required, backfilling, compaction, road repairs, and all concrete work to the specifications of the Cooperative and other local codes at no cost to the Cooperative.
- Electric line extensions to hotels, motels, apartment complexes, RV Parks, and other projects that, in the opinion of the Cooperative, are a Temporary Service or are considered to have intermittent, short term occupancies shall not be eligible for a line extension allowance.
- The Cooperative shall make extensions in excess of the footage allowances provided for in Subsection 106-C upon receipt of a non-interest bearing, refundable cash advance in aid of construction. The total cost of such additional footage shall be based upon a current construction cost study performed by the Cooperative.
- Refunds of advances in aid of construction will be made to the applicant providing the advance when separately metered permanent Customers are served directly from the line extension originally constructed to serve said applicant providing the new line extension is less than the free footage allowance.
- The amount of the refund shall be the cost difference between the free footage allowance and the actual footage of the new extension. The unit cost to be used in the computation shall be the actual cost per foot of constructing the original line.
- In no event shall the total of the refund payments made by the Cooperative be in excess of the amount advanced. If after 5 years from the Cooperative’s receipt of the advance required for the estimated cost of the new line to be constructed has not been totally refunded, the advance shall be considered a contribution in aid of construction and shall no longer be refundable.

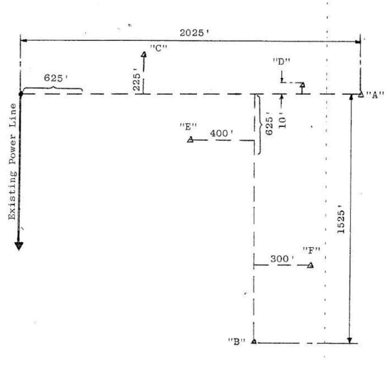
Applicant “A” – Applicant provides advance in aid of construction for footage over 625 feet (1400′ at actual line extension cost.)
Applicant “B” -Applicant provides an advance for footage over 625 feet (900′ at actual line extension cost.) No refund is due applicant “A” because total construction was over 625 feet.
Applicant “C” -No charge to applicant. However, Applicant “A” will get refund. (400′ at actual line extension cost.) Line “C” ties directly into Line “A” and it is under 625 feet.
Applicant “D” -No charge to applicant. Applicant “A” will get a refund of 615′ at actual line extension cost because line “D” ties directly into Line “A”.
Applicant “E” – No charge to applicant. Applicant “B” will get a refund. (225′ at actual line extension cost.) Line “E” ties directly into Line “B”.
Applicant “F” – No charge to applicant. Applicant “B” will get a refund. (325′ at actual line extension cost.) Line “F” ties directly into Line “B”.
- The Cooperative will extend its distribution facilities to irrigation and water pumping customers in accordance with the provisions of Subsections 106-A through 106-E. In addition, irrigation and water pumping customers shall:
- Sign a 3-year irrigation contract; and
- Pay a minimum annual rate in accordance with the Cooperative’s ACC existing rate schedules.
- and be in accordance with NEC, NESC, and other applicable electric codes or ordinances prior to initiation of service by the Cooperative
- A reduced starter may be required for motors 10 horsepower or larger
- Extensions for temporary service or for operations of a speculative character or questionable permanency will be made in accordance with the provisions pertaining to temporary service set forth in Subsection 102-F.
- Under these Rules, the Cooperative shall install only those facilities which it deems are necessary to render service in accordance with the rate schedules and within accepted construction standards. Where the customer requests facilities which are in addition to, or in substitution for, the standard facilities which the Cooperative normally would install, the extra cost thereof shall be paid by the Customer.
- In those instances where the service requested is different from standard due to the size of the load, service may be extended to the applicant(s) under a separate contractual agreement which shall be filed with the ACC.
- Agreements for service shall not be assignable without the Cooperative’s prior written consent. Assignments of refunds pursuant to a line extension agreement shall be effective only after a proper written assignment is delivered to the Cooperative.
- When in the Cooperative’s opinion the permanent nature of the Customer’s requirement for electric service is doubtful, the Customer shall be required to enter into a contract with the Cooperative and shall advance the entire cost of construction, the transformers, and associated structures. The contract shall include provisions for refund upon proof of permanency to the satisfaction of the Cooperative.
Section 107 – Construction of Line Extensions Within Subdivisions
- Distribution facilities will be constructed by the Cooperative within a duly recorded subdivision in advance of application for service by permanent Customers after the Cooperative and the developer of said subdivision have entered into a written contract which includes the minimum information prescribed in Subsection 106-A of these Rules.
- The Cooperative may require a deposit from the developer of an amount equal to the estimated cost of preparing detailed plans, specifications, and electric facilities construction cost estimates related to the subdivision. The deposit shall be credited to the cost of construction if the Cooperative receives authorization from the developer to proceed with construction. In all other cases, should the actual cost incurred in preparation of the cost
estimate be less than the deposit, the difference shall be refunded to the applicant; otherwise the deposit shall be non-refundable. - Proposed subdivisions with approved plats shall be given plans, specifications or cost estimates within 45 days after the Cooperative receives the deposit referred to above.
- The cooperative shall be granted by the developer all required rights-of-way and easements in accordance with the provisions of Subsection 105-C of these Rules.
- All special conditions contained in Subsection 106-H of these Rules are also applicable to extension of distribution facilities to subdivisions.
- The total estimated installed cost of all distribution facilities, exclusive of meters, shall be provided to the Cooperative as a refundable, non-interest bearing advance in aid of construction.
- Where required single-phase line facilities within a subdivision exceed an average of 500 feet per lot, a nonrefundable cash amount equal to that portion of the total estimated installed cost represented by those required line facilities in excess of 500 feet per lot average shall be paid to the Cooperative.
- On or after 1 year subsequent to the completion of construction of the Cooperative’s facilities, and thereafter every 12 months, the Cooperative will review the status of a subdivision to determine the percentage ratio that the number of services occupied by permanent Customers bears to the total number of services to be served by the extensions made within the subdivision. Such periodic review will continue until either (1) the calculated ratio equals or exceeds 90%, or (2) a three year period subsequent to the completion of construction of the Cooperative’s facilities elapses. For the purposes of computation of all charges and refundable deposit requirements under these Rules, the completion of construction of the Cooperatives’ facilities shall be that date upon which the construction is determined to be completed and the facilities are entered into the Cooperative’s records of Plant and property. The percentage ratio determined at the time of each review multiplied by the total refundable advance, less applicable service availability charges previously deducted, if any, shall represent that portion of the advance qualified for refund. If the foregoing calculation indicated a refund is due, an appropriate refund of cash deposit will be made. Refunds of cash deposits, less applicable service availability charges, if any, will also be made by the Cooperative within 90 days following receipt of written notice from the developer requesting payment of earned refund, provided that the earned refund then due represents a minimum of 20% of the total amount of the advance. Furthermore, if at any time 90% or more of the total refundable advance qualifies for refund, any balance of the advance remaining, after applicable service availability charges, if any, have been deducted, will be refunded.
- The Cooperative may make a service availability charge to the developer to recover operating and maintenance expenses related to nonrevenue producing distribution facilities. In general, such charges shall be assessed should the service connection percentage be less than 50% three years subsequent to the completion of construction. The written agreement between the Cooperative and the developer shall include specific service availability charge criteria, if applicable, and the method for computation. The rate charged shall be the existing rate approved by the ACC at the date the agreement is signed.
- Should the Cooperative determine, for valid reasons, the expected growth in revenue producing connections to be speculative, it may require a prepayment of service availability charges in an amount not to exceed 25% of the total amount advanced by the developer. This prepayment shall be refunded to the developer or retained by the Cooperative in accordance with the provisions of the written agreement between the parties pertaining to service availability charges.
- No payment will be made by the Cooperative in excess of the total refundable advance less applicable service availability charges, if any, nor after a period of 3 years subsequent to the completion of construction of the Cooperative’s facilities. Any unrefunded amount remaining at the end of the 3 year period will become nonrefundable.
- The provisions of this subsection shall apply in the case of a request by a permanent customer for service in an underground subdivision abandoned by its developer prior to the construction of “backbone” distribution facilities capable of making service available to the permanent customer’s lot. As used in this subsection, the term “permanent customer” shall mean a person not connected in any way to the original subdivision developer intending to reside at the lot once developed. The term permanent customer shall also include any contractor or construction agent of the permanent customer. Should the permanent customer or his construction agent subsequently request service for a different lot or lots in the same subdivision, that request will be subject to the provisions of subsections 107-A, 107-B, and 107-C. Except as specifically modified herein, all other provisions of the Cooperative’s rules and tariffs shall apply concerning service establishment for the permanent customer.
- Following a request by the permanent customer for extension of service, the permanent customer and Cooperative will enter into a written contract which includes a minimum the information prescribed in subsection 106-A of these Rules. A refundable, non-interest bearing deposit for an Engineering Services Contract may be required to be paid by the customer. This deposit is refundable in excess of actual costs to the Cooperative or will be applied to the total cost of service to the permanent customer at the completion of construction.
- The Cooperative will prepare detailed plans, specifications, and cost estimates, as part of a designed backbone system, in relation to extension of distribution services to the permanent customer’s lot within 90 days of execution of the Agreement. The backbone system will include the minimum necessary facilities to serve the permanent customer, but not the full facilities which would be required of a developer. The plans will also identify other lot(s) which could be served from the backbone facilities to be constructed for the permanent customer. Installation of backbone facilities is also subject to the Cooperative’s ability to secure necessary easements or rights of way. While this is the permanent customer’s responsibility, the Cooperative will assist in this regard.
- Upon receipt of a service request from the permanent customer and payment of the total estimated cost of the backbone facilities by the permanent customer as a refundable, no interest bearing advance in aid of construction, and installation of a full facilities conduit system to the Cooperative’s specifications, the Cooperative will commence and complete construction of the backbone facilities. Should actual cost of construction be more or less than the estimate, the permanent customer will be billed or refunded the difference.
- On or after one year subsequent to construction completion, and every 12 thereafter, the Cooperative will determine if the permanent customer is entitled to a refund of any portion of the amount advanced under paragraph 4 based upon amounts actually received from customer(s) establishing service to lot(s) identified in paragraph 3. For example, if six lots are identified in the plans, including the lot where service has been provided to the customer, and two of these lots establish service during any review period, the permanent customer would be entitled to a refund of 1/3 of the amount advance (2 divided by 6). This refund obligation will continue until the permanent customer’s advance less his pro rata share is refunded or seven years after construction, whichever occurs first.
- Others requesting service as permanent customers to lots identified in the plans described in paragraph 3, prior to service establishment, will pay a non-refundable pro rata share of the actual cost of construction of the backbone facilities by the permanent customer. Other customers requesting service in the fourth through the seventh year after completion of the backbone facilities will also pay an additional amount equal to 5% of such customer’s pro rata share per year, beginning in year one, or portion thereof since completion of the backbone facilities as a non-refundable maintenance contribution. The other customer(s) may also be required to advance an additional amount necessary to add to the backbone facilities constructed for the initial permanent customer. In the event such an additional amount is required which exceeds $500 and which could benefit other lot(s), the other customer(s) shall be treated as a permanent customer as to the additional amount only and the procedure specified in this subsection shall be followed in relation to the additional advance. Refunds under paragraphs 5 and 6 will be paid to the permanent customer or successor customer if sale of the lot occurs during the refund period.
- A permanent customer may at his option elect to be treated as a developer under the provisions of subsections 107-A, 107-B, and 107-C. Persons not meeting the definition of a permanent customer as used here in who are not connected in any way to the original developer shall be treated as a developer under the provision of subsections 107-A, 107-B, and 107-C. However, in either event, the electing or non-qualifying permanent customer shall be entitled to refunds over a five year period.
- Any customer requesting service after the refund period in an area where backbone facilities have already been installed pursuant to this tariff shall not have to pay for that backbone facility that has already been installed.
Section 108 – Cooperative and Customer Responsibilities for Safe and Reliable Service
- Prompt, reliable electric service to the Customer is the Cooperative’s primary objective. However, the Cooperative shall not be responsible for any damage or claim of damage attributable to any interruption or discontinuation of service resulting from:
- Any cause against which the utility could not have reasonably foreseen or made provision for, i.e., force majeure
- Scheduled service interruptions to make repairs or perform routine maintenance
- Curtailment.
- All meters, service drops, and related fixtures, installed by the Cooperative upon the Customer’s premises for the purpose of delivering electric service to the Customer shall continue to be the property of the Cooperative, and may be repaired, replaced, or removed by it at any time. Such equipment shall be maintained in safe operating condition by the Cooperative.
- The Cooperative may temporarily suspend service to make repairs, replacements, maintenance, tests, or inspection of Cooperative equipment or to make tests, inspections, connections, or disconnections of Cooperative service. The Cooperative shall make reasonable efforts to notify the Customer verbally or through the public media about the need for and the duration of a planned service interruption, but it may suspend service in an emergency situation without prior notice to the Customer.
- The Customer shall be responsible for the repair or maintenance of Customer-owned equipment beyond the point of delivery, including any condition that adversely affects the Cooperative’s service to the Customer or to others.
- The Customer agrees, when accepting service, that no one except authorized employees of the Cooperative, or authorized contracted individuals utilized by the Cooperative under contract, shall be allowed to remove or replace any Cooperative owned equipment installed on the Customer’s property. The Customer will be held responsible for any broken seals, tampering, or interfering with the Cooperative’s meter(s) or other utility property.
- The Customer shall buy, own and maintain such protective equipment as the Cooperative deems necessary to assure isolation of the service from the Cooperative’s system due to abnormal load or fault conditions in the service.
- An Applicant installing any means of stand-by-power which may become inter-connected with the Cooperative’s service must notify the Cooperative’s operations department first. To accommodate such connection, the Customer must install a double-throw transfer switch at the Customer’s expense. The Cooperative shall again be notified after the installation and will inspect the connection, and if satisfactory, approve said connection. All installations of stand-by-power systems must meet or exceed the requirements of the Cooperative, the NEC, and the NESC.
Section 109 – Meter Reading
- It shall be at the discretion of the Cooperative whether the meter will be read by Cooperative personnel or the Customer. Every attempt shall be made to read meters monthly on as close to the same day as practical. However, meter readings may be scheduled for periods of not less than 25 days or more than 35 days.
- The Cooperative reserves the right to read meters on a schedule less frequent than monthly where the location is so remote or inaccessible that fewer actual readings, or readings taken by the Customer are in the best interest of operating economy. However, in no event will meters be read less frequently than every 3 months. Billing under these circumstances shall be in accordance with the provision of Subsection 110-B on estimated bills.
- Unless otherwise specifically provided in the rate schedule or by contract, each of the Cooperative’s rate schedules is based upon the supplying of electric service to one Customer at a single point of delivery and at a single voltage and phase classification, and any additional service supplied to the same Customer at other points of delivery or at a different voltage or phase classification shall be separately metered and billed. Multiple meters at a single service location shall be separately read and will not be combined for billing purposes.
- The registration of the Cooperative’s meter at the Customer’s point of delivery shall constitute evidence of the amount of energy and/or billing demand used by the Customer, except where unmetered service is supplied, such as street lighting or security lighting, or where otherwise authorized by the ACC. All meters shall be owned and maintained by the Cooperative.
- When there is more than one meter at a location, the metering equipment shall be permanently tagged by the Customer as to indicate the location metered or metering equipment. Meters which are not direct reading shall have the multiplier plainly marked on the meter. All charts taken from recording meters shall be marked with the date of the record, the meter number, Consumer, chart multiplier, CT and PT multiplier, scale used, date removed and items measured.
- The Cooperative shall at the request of a Customer reread that meter once within ten (10) working days after such request by the Customer. Any reread may be charged to the Customer at a rate on file and approved by the ACC, provided that the original reading was not in error. When a reading is found to be in error, the reread shall be at no charge to the Customer.
- The Cooperative shall test a meter upon the written request of a Customer and upon receipt of a meter testing charge from the Customer to cover the costs of conducting the test. The meter may be, at the Customer’s option, field tested, shop tested or tested by a qualified independent testing facility. If the meter is found to be in error by more than three percent (3%), the meter testing charge will be refunded to the Customer. Should the test determine that the meter is within the three percent (3%) error tolerance, the Cooperative shall retain the charge. The charges levied shall be in accordance with the existing tariff for such service as approved by the ACC.
- The Cooperative shall have the right of safe ingress to and egress from the Customer’s premises at all reasonable hours for meter reading and other legitimate purposes related to providing the Customer with safe and reliable service.
- No person, except an authorized employee of the Cooperative or contracted individual under contract with the Cooperative acting on behalf of the Cooperative shall alter, remove or make any connections to the Cooperative’s meter or service equipment except where the Cooperative has consented to seal removal by an approved electrician employed by a Customer.
- In cases of tampering with meter installation, interfering with the proper working thereof; or any other theft of service by an person, or evidence of any such tampering, interfering, theft, or service diversion, including the falsification of Customer read meter readings; that service shall be subject to termination and the Customer shall be responsible for all losses suffered by the Cooperative as a result of such tampering, interference, theft or service diversion.
- The Cooperative shall be entitled to collect from the Customer whose name the service is in, the appropriate rate for all power and energy not recorded on the meter as the result of such tampering, or other theft of service, and also any additional security deposits as well as all expenses incurred by the Cooperative for property damages.
Section 110 – Billing and Collection
- Each bill for residential service will contain the following minimum information:
- Date and meter reading at the start of billing period or number of days in the billing period.
- Date and meter reading at the end of the billing period.
- Billed kWh usage and kW demand (no kW demand will be provided for prepaid service).
- Rate schedule number.
- Cooperative’s telephone number and address.
- Customer’s name.
- Service account number.
- Amount due and due date
- Past due amount
- Purchased Power Cost Adjustment factor, where applicable.
- Other items, including (but not all-inclusive) taxes, licenses, franchise, and renewable energy fees
- Subject to the provisions of Subsection 109-A (2) and Arizona Corporation Commission approved tariffs, estimated bills will be issued only under the following conditions:
- Failure of a Customer who read his own meter to deliver his meter reading card to the Cooperative in accordance with the requirements of the billing cycle.
- Severe weather conditions which prevent the Cooperative from reading the meter.
- Circumstances that make it dangerous or impossible to read the meter, i.e., locked gates, blocked meters, vicious or dangerous animals, etc.
- If the Cooperative is unable to read the meter on the scheduled read date, an estimate of consumption will be billed; the estimate will be based on the Customer’s historical usage patterns including the preceding month’s metered usage and the usage during the same month of the previous year. The Cooperative will make a concerted attempt to estimate a Customer’s consumption for no more than two consecutive months, unless otherwise prevented by severe weather conditions. Each bill based upon estimated usage will contain notation that it is an estimated bill.
- All bills for electric services are due upon receipt and payable no later than 15 days from the date the bill is rendered. Any payment not received within this time frame shall be considered past due.
- For purposes of this rule, the date a bill is rendered may be evidenced by:
- The postmark date
- The mailing date
- The billing date shown on the bill (however, where the billing date differs from the postmark or mailing date, a. or b. above applies).
- All past due bills are due and payable within 10 days. Any payment not received within this time frame shall be considered delinquent. The Cooperative shall charge a penalty fee as approved by the ACC of the total amount of the billing on all accounts that become delinquent. The Cooperative may charge an interest charge as approved by the ACC on cumulative delinquent balances on all accounts with delinquent balances.
- All delinquent bills for which payment has not been received within 5 days shall be subject to the provisions of the Cooperative’s termination of service procedures.
- All payments shall be received in the office of the Cooperative or its designee either by mail, electronic bill, or telephone; if mailed, payment shall be deemed made only when received by the Cooperative.
- Each Customer shall be billed under the applicable tariff indicated in the Customer’s application for service.
- Failure to receive bill or notices which have been properly placed in the United States mail shall not prevent such bills from becoming delinquent nor relieve the Customer of his obligations therein.
- If any meter after testing is found to be more than 3% in error, either fast or slow, proper correction shall be made of previous readings and adjusted bills shall be rendered according to the following terms:
- For residential services, the period of 3 months immediately preceding the removal of such meter from service for test or from the time the meter was in service since last tested, but not exceeding 3 months since the meter shall have been shown to be in error by such test. For non-residential services, the length of time shall not exceed 6 months.
- If the cause for the error can be definitely determined, the undercharge or overcharge shall be computed back to but not beyond the date established and will not exceed 12 months. No part of the minimum charge will be refunded.
- In case of under-billing, the Cooperative may forego rendering a corrected bill if the amount of the under-billing is not significant in the opinion of the Cooperative.
- No adjustment shall be made by the Cooperative except to the Customer last served by the meter tested.
- The Cooperative shall be allowed to recover a fee, as approved by the ACC, for each instance where a Customer tenders payment for electric service with an insufficient funds check or electronic funds transfer that is rejected due to insufficient funds.
- When the Cooperative is notified by the Customer’s bank that there are insufficient funds to cover the check tendered or electronic funds transferred for electric service, the Cooperative may require the Customer to make payment in cash, by money order, certified check, or other means which guarantees the Customer’s payment.
- A Customer who tenders an insufficient funds check or rejected electronic funds transfer shall in no way be relieved of the obligation to render payment to the Cooperative under the original terms of the bill or defer the Cooperative’s provision for termination of service for non-payment of bills. Acceptance of a partial payment by the Cooperative likewise does not relieve the Customer of the liability for the unpaid balance or defer the Cooperative’s termination procedures.
- The Cooperative may, at its option, offer its residential customers a levelized billing plan.
- If a levelized billing plan is offered, the Cooperative shall develop upon customer request an estimate of the Customer’s levelized billing for a 12-month period based upon:
- Customer’s actual consumption history, which may be adjusted for abnormal conditions such as weather variation.
- The Cooperative’s tariff schedules approved by the ACC applicable to that Customer’s class of service.
- The Cooperative shall provide the Customer a concise explanation of how the levelized billing estimate was developed, the impact of levelized billing on a Customer’s monthly utility bill, and the Cooperative’s right to adjust the Customer’s billing for any variation between the estimated billing and actual billing. The Customer who elects the levelized billing plan shall be required to sign an agreement.
- For those Customers being billed under a levelized billing plan, the Cooperative shall show, at a minimum, the following information on the Customer’s monthly bill:
- Actual consumption
- Amount due for actual consumption
- Levelized billing amount due
- Accumulated variation in actual versus levelized billing amount.
- The Cooperative may adjust the Customer’s levelized billing in the event the estimate of the Customer’s usage and/or cost should vary significantly from the Customer’s actual usage and/or cost; such review to adjust the amount of the levelized billing may be initiated by the Cooperative or upon Customer request.
- The Cooperative may, prior to termination, offer to qualifying residential customers a deferred payment plan for the Customer to retire unpaid bills for electric service. Delinquencies occurring during the period of June 1 through October 15 each year are eligible for a deferred payment plan, and will have a four month payment period.
- Each deferred payment agreement entered into by the Cooperative and the Customer due to the Customer’s inability to pay an outstanding bill in full shall provide that service will not be discontinued if:
- Customer agrees to pay at least 50% of the outstanding bill at the time the parties enter into the Cooperative’s approved deferred payment agreement. Lack of such an agreement for such deferred payment arrangement will result in there being no deferred payment plan.
- Customer agrees to pay all future bills for electric service in accordance with the billing and collection tariffs of the Cooperative so that the Customer’s account would not otherwise be delinquent. If the Customer does not keep all future bills paid before their respective delinquent dates the deferred payment arrangement shall be considered as in default by the Cooperative and the Customer’s account subject to disconnect 5 days after the future bill’s delinquent date.
- Customer agrees to pay a reasonable portion of the remaining outstanding balance in installments over a period not to exceed 6 months after making at least a payment equal to 50% of the delinquent balance at the time the deferred payment agreement is negotiated between the Cooperative and the Customer.
- The Cooperative may charge interest at the rate as approved by the ACC on all past due balances that are included in the deferred payment agreement, except that the Cooperative will not impose interest charges on deferred payment arrangements from June 1 through October 15.
- For the purposes of determining a reasonable installment payment schedule under these rules, the Cooperative and the Customer shall give consideration to the following conditions:
- Size of the delinquent account
- Customer’s ability to pay
- Customer’s payment history
- Length of time that the debt has been outstanding
- Circumstances which resulted in the debt being outstanding
- Any other relevant factors related to the circumstances of the Customer
- Any Customer who desires to enter into a deferred payment agreement shall establish such agreement prior to the Cooperative’s scheduled termination date for nonpayment. In the event a deferred payment agreement has been negotiated and the Customer fails to execute said agreement balance prior to the scheduled termination date the Cooperative shall discontinue service for non-payment.
- Deferred payment agreements shall be in writing and shall be signed by the Customer and an authorized Cooperative representative.
- A deferred payment agreement may include a finance charge as approved by the ACC in a tariff proceeding.
- If a Customer has not fulfilled the terms of a deferred payment agreement, the Cooperative shall have the right to disconnect service pursuant to the termination of service rules and, under such circumstances, the Cooperative shall not be required to offer subsequent negotiation of a deferred payment agreement prior to disconnection.
- Not less than 3 working days’ advance notice must be given either in person, in writing, or by telephone to the Cooperative’s Customer Service office to discontinue service, or when notifying the Cooperative of a change in occupancy.
- The outgoing party shall be responsible for all electric services provided and/or consumed up to the scheduled shut-off date or read-in (in to the new customer’s name) and read-out (out of the vacating customer’s name) date when service is being continued without interruption at the residence.
- It shall be the responsibility of the new occupants to satisfactorily apply for service with the Cooperative prior to the initiation of the 3 day notice of change in occupancy. In the absence of this action the standing notice from the vacating party will be executed instead as a disconnection date of service to the residence.
- The Cooperative accepts payments of cash, check, debit or credit cards, and electronic payments for most charges levied by the Cooperative.
- The Customer is allowed 2 non-sufficient funds check payments within a 12 month period, after which the Customer shall be required to make payment by cash or cashier’s check.
- The Cooperative will charge a returned item fee for each returned check, and applicable late fees will be applied if the returned payment is not made good prior to the delinquent date when late fees are applied.
- Payment Disputes
- If the Customer disputes a payment made by credit or debit card, upon resolution of the dispute, the Cooperative will make refund to the Customer by crediting such payment back to the Customer’s credit or debit card and the Customer’s account will be adjusted appropriately.
- Refunds
- Payments by credit or debit card to be applied on accounts scheduled to be disconnected that result in refunds due the Customer after disconnect will be refunded as directed above by the Cooperative 45 days after receipt of payment.
- Payments by check to be applied on accounts scheduled to be disconnected that result in refunds due the Customer after disconnect will be refunded 30 days after the date of the payment.
- Payments made by the Customer prior to the Customer scheduling a disconnect of service shall be subject to refund if an overpayment results and such refund shall be treated by the Cooperative in the same manner as prescribed in this Subsection.
Section 111 – Termination of Service
- The Cooperative will not disconnect service for any of the reasons stated below:
- The Cooperative will not terminate residential service where the Customer has an inability to pay and:
- Delinquency in payment for services rendered to a prior Customer of record or authorized agent at the premises where service is being provided, except in the instance where the prior Customer, or authorized agent, on the previous account continues to reside on the premises.
- Failure of the Customer to pay for services or equipment which are not regulated by the ACC.
- Nonpayment of a bill related to another class of service
- Failure to pay a bill to correct a previous under-billing due to an inaccurate meter or meter failure when the Customer agrees to pay over a reasonable period of time.
- The Customer can establish through thorough medical documentation that, in the opinion of a licensed medical physician, termination of service would be especially dangerous to health of a customer or a permanent resident residing on the customer’s premises.
- Life supporting equipment used in the home that is dependent on utility service for operation of such apparatus.
- Where weather will be especially dangerous to health and defined herein.
- The Customer and the Cooperative mutually agree that the Cooperative supply limited service by means of a current limiter supplied by the Cooperative to assist the Customer in being able to maintain service to operate the life-supporting equipment.
- The customer has paid at least half of the customer’s outstanding bill balance within the last 25 days. This restriction does not apply to prepaid service.
- The customer’s outstanding bill balance is less than or equal to $75.00. This restriction does not apply to prepaid service.
- When the Cooperative’s office is not open to the public on the day of disconnection and the day following the day of disconnection.
- Residential service to ill, elderly, or handicapped Customers of record who have the inability to pay will not be terminated until all of the following have been attempted:
- The Customer has been informed of the availability of funds from various government and social assistance agencies.
- A third party previously designated by the customer has been notified and has not made arrangements to pay the outstanding utility bill.
- A Customer utilizing the provisions of (d.) or (e.) must enter into an agreeable deferred payment agreement with the Cooperative within 10 days after the scheduled termination date.
- A Customer of record utilizing the provision of (e.) or (f.) who has not previously notified the Cooperative of a life-threatening medical necessity must do such within 3 days after the Cooperative’s scheduled termination of service date. The necessity must apply to the Customer of record or a dependent (as defined by the Internal Revenue Service) living in the residence that could not by medical necessity live on their own independently.
- Disputed bills where the Customer has complied with the ACC’s rules on customer bill disputes.
- Electric service may be discontinued without advance written notice under the following conditions:
- The existence of an obvious and imminent hazard to the safety or health of the Customer or the general population or the Cooperative’s personnel or facilities.
- The Cooperative had evidence of meter tampering, theft of service, or damage and loss to the Cooperative’s property pertaining to the service to the Customer.
- Failure of a Customer to comply with the curtailment procedures.
- An emergency requiring immediate discontinuance of service.
- Unauthorized resale or use of electric services.
- The Cooperative shall not be required to restore service until the conditions which resulted in the termination have been corrected to the satisfaction of the Cooperative.
- Each utility shall maintain a record of all terminations of service without notice. This record shall be maintained for a minimum of one year and shall be available for inspection by the Commission
- Upon notice the Cooperative may without making a personal visit to the site, disconnect service to any Customer for any reason stated below:
- Customer violation of any of the Cooperative’s tariffs.
- Failure of the Customer to pay a delinquent bill for electric service.
- Failure to meet or maintain the Cooperative’s deposit requirements.
- Use of prohibited equipment.
- Failure of the Customer to provide the Cooperative reasonable access to its equipment and property.
- Customer breach of a written contract for service between the Cooperative and Customer.
- When necessary for the Cooperative to comply with an order of any governmental agency having such jurisdiction.
- Each utility shall maintain a record of all terminations of service with notice. This record shall be maintained for one year and be available for Commission inspection.
- The Cooperative shall not terminate service to any of its Customers without providing advance written notice to the Customer of the Cooperative’s intent to disconnect service, except under those conditions specified in these Rules where advance written notice is not required.
- Such advance written notice shall contain, at a minimum, the following information:
- The name of the person whose service is to be terminated and the address where service is being rendered.
- The rule or tariff that was violated and explanation thereof or the amount of the bill which the Customer has failed to pay in accordance with the payment policy of the Cooperative, if applicable.
- The date on or after which service may be terminated.
- A statement advising the Customer to contact the utility at a specific address or phone number for information regarding any deferred payment or other procedures which the utility may offer or to work out some other mutually agreeable solution to avoid termination of the customer’s service
- A statement advising the Customer that the Cooperative’s stated reason for the termination of services may be disputed by contacting the Cooperative at a specific address or phone number, advising the Cooperative of the dispute and making arrangements to discuss the cause for termination with a responsible employee of the Cooperative in advance of the scheduled date of termination. The responsible employee shall be empowered to resolve the dispute and the Cooperative shall retain the option to terminate service after affording this opportunity for a meeting and concluding that the reason for termination is just and advising the Customer of his right to file a complaint with the ACC.
- When the residential customer would have been disconnected if not for a period of excessive heat, the Customer shall be provided notice, using the customer’s preferred method of communication on file of the following:
- That service would have been disconnected if not for a period of excessive heat.
- The reason that the utility is not permitted to disconnect service.
- The customer’s continued financial responsibility for the charges accruing to the account for the energy used.
- The potential actions the customer may take to prevent the disconnection of service when the weather conditions defined herein no longer apply.
- The requirement to enter into a payment plan.
- Where applicable, a copy of the termination notice will be forwarded to designated third parties prior to termination of service.
- The Cooperative shall be required to give at least 5 days’ advance written notice prior to the termination date. Such notice shall be considered to be given to the Customer when a copy thereof is left with the Customer or posted first class in the United States mail, addressed to the Customer’s last known address.
- If after the period of time allowed by the notice has elapsed and the delinquent account has not been paid nor arrangements made with the Cooperative for the payment thereof or in the case of a violation of the Cooperative’s Rules the Customer has not satisfied the Cooperative that such violation has ceased, the Cooperative may then terminate service on or after the day specified in the notice without giving further notice anytime.
- The utility shall have the right (but not the obligation) to remove any or all of its property installed on the Customer’s premises upon the termination of service
- In the situations where service is rendered at an address different from the mailing address of the bill or where the Cooperative knows that a landlord/tenant relationship exists and that the landlord is the Customer of the Cooperative, and where the landlord as a Customer would otherwise be subject to disconnection of service, the Cooperative may not disconnect service until the following actions have been taken:
- Where it is feasible to provide service, the Cooperative, after providing notice as required in this rule, shall offer the occupant the opportunity to subscribe for service in his or her name. If the occupant then declines to so subscribe, the Cooperative may disconnect service pursuant to this rule.
- The Cooperative shall not attempt to recover from a tenant or condition service to a tenant with the payment of any outstanding bills or other charges due upon the outstanding account of the landlord.
Section 112 – Administrative and Hearing Requirements
- The Cooperative shall make a full and prompt investigation of all service complaints.
- The Cooperative shall respond to the complainant within 5 working days as to the status of the Cooperative’s investigation of the complaint.
- The Cooperative shall notify the complainant of the final disposition of each complaint. Upon request of the complainant, the Cooperative shall report the findings of its investigation in writing.
- The Cooperative shall inform the Customer of his right of appeal to the ACC.
- Any Customer who disputes a portion of a bill rendered for electric service shall pay the undisputed portion of the bill and notify the Cooperative’s designated representative that such unpaid amount is in dispute prior to the delinquent date of the bill.
- Upon receipt of the Customer notice of dispute, the Cooperative shall:
- Notify the Customer within 5 working days of the receipt of a written dispute notice.
- Initiate a prompt investigation as to the source of the dispute.
- Withhold disconnection of service until the investigation is completed and the Customer is informed of the results. Upon the request of the Customer the Cooperative shall provide the Customer a copy of the results of the investigation in writing.
- Inform the Customer of his right of appeal to the ACC.
- Once the Customer has received the results of the Cooperative’s investigation, the Customer shall submit payment within 5 working days to the Cooperative, for any disputed amounts. Failure to make full payment shall be grounds for termination of service.
- In the event a Customer and the Cooperative cannot resolve a service and/or bill dispute, the Customer shall file a written statement of dissatisfaction with the ACC; by submitting such statement to the ACC, the Customer shall be deemed to have filed an informal complaint against the Cooperative.
- The Cooperative may implement normal termination procedures if the Customer fails to pay all bills rendered during the resolution of the dispute by the ACC.